Gyálon eladó új ikerház nagy telekkel
Leírás
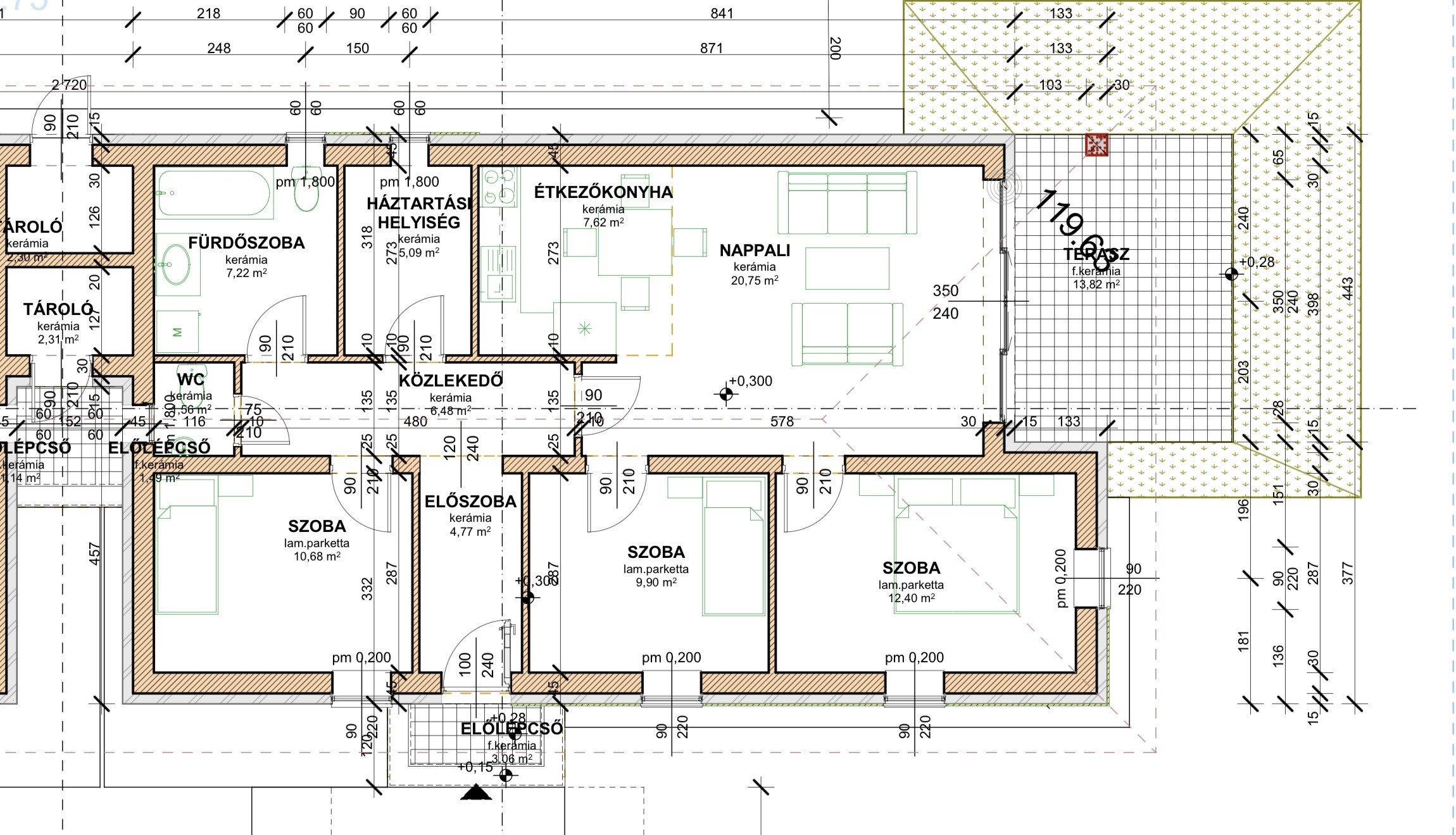
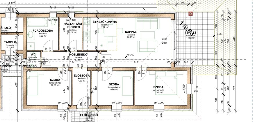
Gyálon foglalható 2027.03. havi átadással ikerházi lakás!
Az lakások teljesen leválasztott telekkel rendelkeznek, külön bejárattal . Nettó : 92 nm alapterületű + 14 nm fedett terasz .
Praktikus elosztású: világos tágas terek, nagy nyílászárók -3 külön bejáratú szoba , előszoba , közlekedő, külön wc, fürdőszoba, háztartási helyiség , konyha+ étkező+ nappali.
Minőségi kivitelezésben épül, extra minőségű külsőleg antracit színű nyílászárókkal ( Aluminium tolópajzsos bejárati ajtó, emelő tolós teraszajtó ) .
Riasztó, elektromos kapu , elektromos redőnyök+ szúnyoghálók ( kivéve terasztón nincs szúnyogháló ) ,gránit külső – belső ablakpárkányok, 15 cm oldal- aljzat szigetelés- mennyezeten purhabos szigetelés.
Hőszivattyús fűtés rendszer , Fischer hőszivattyú, külön hőszivattyús bojler , nappaliban klíma, H tarifa , 3×25 áram erősség. 1 . Lakás saját telke :338 nm +40 nm, 2 lakás telke 678 nm+ 40nm .
Ezért a 1. lakás 99.900.000 Ft
Jelenleg a hideg meleg burkolat választható 7.000 Ft/ nm áron, beltéri ajtók színe az adott kategórián belül.
Gyál kedvelt részén található,18 kerülettel határos utcában a Jókai Mór u.
A cégnek jelenleg több futó projektje van, ezért ennek a vállalása 2027.03 hónap.
Ismertetés
- Ingatlan azonosító (ID) 6379
- Ár 104.000.000Ft
- Ingatlan típusa Ikerház, Új lakóingatlan
- Ingatlankínálat típusa Eladó ingatlan
- Szoba 4
- Méret 92 m2
- Telekméret 708 m2
- Cimke Kiemelt
Útvonaltervezés
Közeli helyek
A hirdető/tulajdonos adatainak megtekintéséhez be kell jelentkezni, vagy regisztrálni kell a honlapon.
Hasonló ingatlanok
Új ikerház eladó Gyálon 2027.03 havi átadással
99.900.000FtGyálon foglalható 2027.03. havi átadással ikerházi lakás! Az lakások teljesen leválasztott telekkel rendelkeznek, külön bejárattal . Nettó : 92 nm alapterületű + 14 nm fedett terasz . Praktikus elosztású: világos tágas terek, nagy nyílászárók -3 külön bejáratú szoba , előszoba , közlekedő, külön wc, fürdőszoba, háztartási helyiség , konyha+ étkező+ nappali. Minőségi kivitelezésben épül, extra […]
Új építésű ikerház eladó Vecsésen
125.000.000Ft125.000.000 Ft Vecsésen eladó most épülő ikerház hátsó fele, minőségi kivitelezésben , megbízható anyagi háttérrel rendelkező cégtől. Az ingatlant garázsok választják el egymástól . A hátsó ikerházi lakás nettó: 128 nm garázzsal együtt, kétszintes, 453 nm telekkel. Földszinten találunk: tágas világos nappali+ konyha+ étkezőt, kamrát, zuhanyzót, előteret valamint 6.5 nm amerikai teraszt. Emeleten: 3 hálószobát […]
Tökölön lakás eladó
75.900.000FtTökölön eladó egy 4 lakásos sorház 4 számla jelölt nettó:65 nm kétszintes lakása. Teljesen leszeparált , külön saját telekkel rendelkezik, udvaron autóbeállÁsi lehetőséggel, nappali kert kapcsolatos. Az ingatlan új építésű, társasházi okirattal rendelkezik , megfelel az Otthon Start Hitel feltételeinek. Jó elosztású , világos lakás, élhető terekkel . Kondenzációs gázkazán van, padló fűtéssel. Felosztása a […]
Üllőn eladó sorházi lakás új építésű
124.500.000FtÜllőn 2026.12. havi átadással eladó 2 db ikerház. 4 számú hátsó lakása, melyet tároló választ el a másik ikerház felétől. Az ingatlan teljesen leszeparált, külön bejárattal rendelkezik, 356 nm telekkel rendelkezik Elosztása praktikus, világos, tágas terekkel, külön tárolóval rendelkezik- ahol helyett kapott a fűtésrendszer- hőszivattyús rendszer és hőszivattyús bojler. A lakás nettó: 104 nm , […]
